
I Fritidslandsbyen Tang & Lyng bygger vi med landskabet – ikke imod det.
Det betyder i korte træk, at vi placerer husene hvor landskabet naturligt tillader det, uden at ændre terrænet.
Arkitekturen tager udgangspunkt i grunden, som den er kendetegnet:
åben, vidtstrakt og levende.
Sammen ejer fællesskabet ca. 16 huse, som står organisk i terrænet og bindes sammen af grønne fællesrum, hvor der er plads til både ro og fællesskab.
Husene placeres ikke i rækker, men i rytme med naturen. Hver enhed er tænkt ind i udsigten, terrænet og de stemninger, stedet rummer. Og vi bygger let – ovenpå jorden, så vi skåner det liv, der allerede er her.
*I januar 2026 har de nuværende medstiftere en indledende arkitekturworkshop.




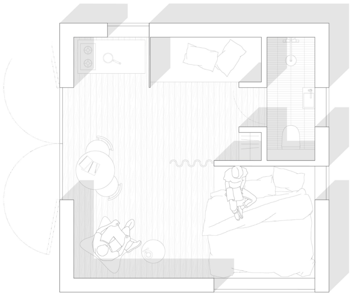
Modulet på 23 m² er lille, men rummer meget. Her kan du både sove, arbejde, trække dig tilbage – eller invitere nogen forbi. Den kvadratiske form giver en god rytme i rummet og en rolig arkitektonisk stemning, der passer naturligt ind i både fællesskabet og landskabet. Det spiller sammen med de andre enheder og får hele området til at hænge bedre sammen – både æstetisk og i praksis.




Husene ligger let i landskabet og er tegnet til både det stille øjeblik og det liv, vi deler.
De vil være forskellige størrelser, sammensat med omhu og blik for variation – i tæt samarbejde med arkitekterne fra Njordrum.
Her er plads til både privatliv og naboskab, skabt i en rytme, der følger naturens linjer snarere end snorlige streger. Nogle huse er oplagte til familier eller vennegrupper med behov for flere sengepladser og fællesrum. Andre er mere intime og velegnede til par eller solister, der ønsker ro og fordybelse i naturen.
Uanset sammensætning har vi lagt vægt på, at hvert hus skal kunne bruges alene – med privatliv, ro og udsigt – og samtidig fungere i samspil med de andre. I designfasen arbejder vi sammen om at fastlægge de endelige sammensætninger og placeringer, så de afspejler landsbyens behov ogdrømme.


Badehuset, hvor både ro og fællesskab mødes
Arkitekturen trækker på naturen som sit fundament og skaber rum, der indbyder til både fordybelse og samvær. Trædæk, adgangsveje og bademuligheder er integreret med respekt for landskabet og stedets karakter, så de bliver en naturlig del af helheden.
Her kan du finde stilhed alene eller dele et øjeblik med andre. Når du står eller sidder på det let ophøjede trædæk, bliver oplevelsen ikke kun sanselig, men også en mulighed for nærvær.
Udsigten og naturens rolige bagtæppe gør det til et ideelt sted at mødes, slappe af og lade samtalerne flyde. Et rum, der åbner op for både det individuelle og det fælles.